Hawthorn Drive, Harthill

Offers Over £150,000
Sold STC
3 Bedrooms
2 Bathrooms
2 Receptions

Hawthorn Drive, Harthill

Property Summary

Well maintained 3 bed semi in Harthill with 2 baths, open plan kitchen, large garden, 3 car drive, wooden garage. Close to schools, transport links and local amenities. Ideal family home.
  • Ref: add60c13-f685-4577-991b-cec280b5577e
  • Availability: Sold STC
  • Bedrooms: 3
  • Bathrooms: 2
  • Reception Rooms: 2
  • Council Tax Band: A
  • Tenure: Freehold
  • Make Enquiry
  • Floorplan
  • View Brochure
  • View Brochure
  • View Brochure
  • Utilities & More
  • Make Enquiry
  • LBTT Calculator

Description

Full Details

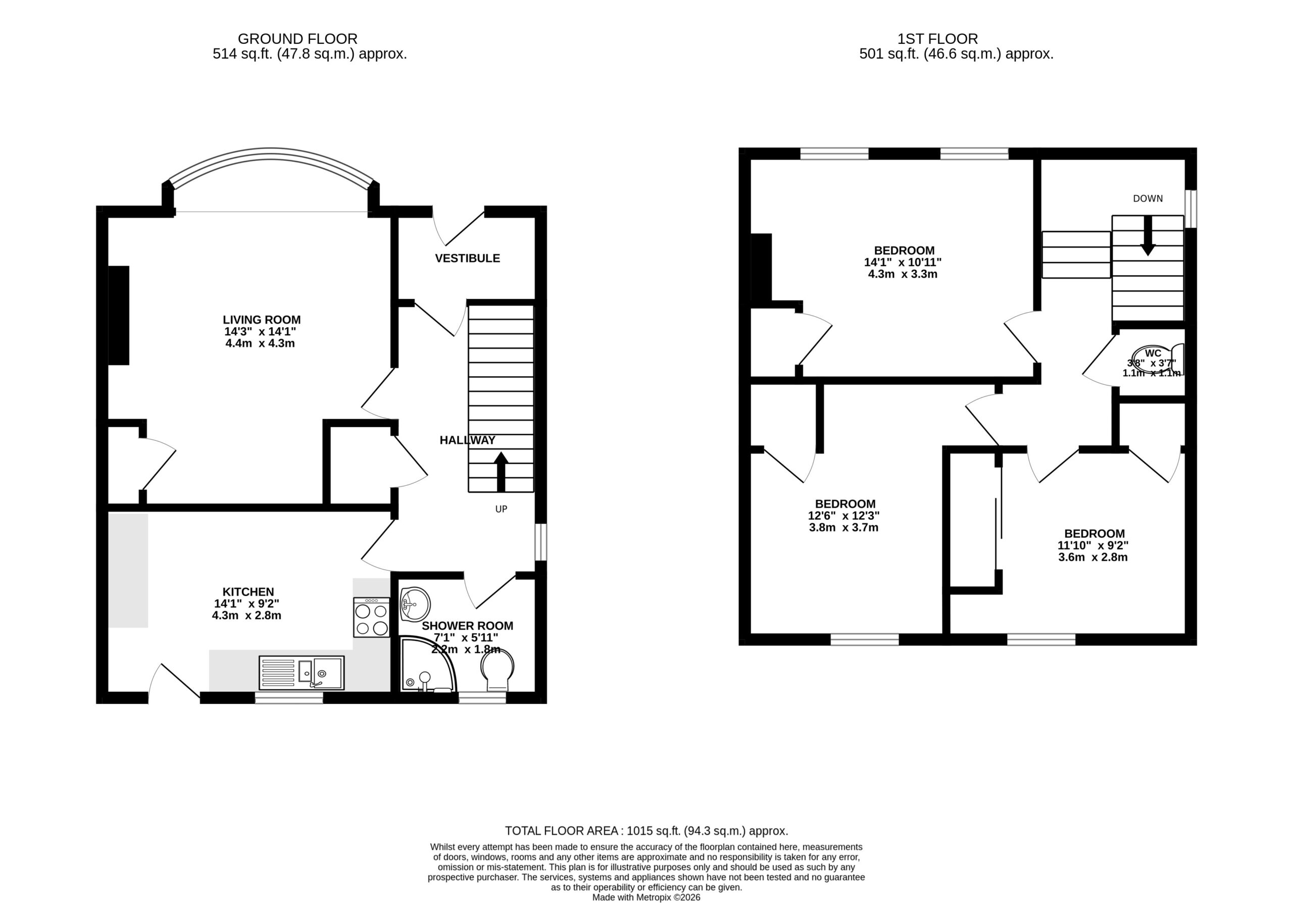
Welcome to Hawthorn Drive, Harthill, a well maintained three bedroom semi detached home offering spacious accommodation, two bathrooms and excellent outdoor space. Lovingly owned for over 40 years, this property has been carefully looked after and provides a fantastic opportunity for families seeking a comfortable home in a convenient and well connected location. The property further benefits from an east facing rear garden, a three car driveway and a large wooden garage.

Upon entering, you are welcomed into a bright and spacious hallway with useful storage positioned underneath the stairs. To the right hand side, at the front of the property, sits the lounge, a cosy and inviting space that comfortably accommodates two large sofas along with a media wall. A fireplace creates a focal point for the room, making it an ideal space for relaxing in the evenings.

To the rear of the home is the open plan kitchen and dining area, which has been renovated and offers excellent space for everyday living and hosting. The kitchen is fitted with white matte cabinetry, generous worktop space and splashback tiling. It features a four point gas hob, integrated oven, integrated fridge freezer and space for additional white goods. There is ample room for a dining table for around four people, while rear facing windows allow natural light to fill the space.

Also located on the ground floor towards the rear is the main bathroom, which is fully tiled and comprises a three piece suite including a standing shower, providing practical and convenient ground floor facilities.

Upstairs, the landing is bright and spacious and includes a useful linen cupboard. There is also an additional WC on this level, fitted with a toilet and wash hand basin, adding further convenience for family living.

The property offers three well proportioned double bedrooms. The principal bedroom is positioned towards the front of the home and comfortably accommodates a king size bed with bedside cabinets, while also benefiting from a large fitted wardrobe. Bedroom two, located to the rear, accommodates a double bed with bedside cabinets and offers space for additional wardrobe furniture. Bedroom three is another versatile double bedroom that can comfortably fit a double bed with bedside cabinets and can easily be configured as a bedroom, office or guest room.

Externally, the property enjoys a generous east facing rear garden which provides a private outdoor space ideal for relaxing or entertaining. A large wooden garage offers excellent additional storage or workshop potential. To the front, the property benefits from a spacious three car driveway, providing ample off street parking.

Hawthorn Drive is ideally located within Harthill, close to Alexander Peden Primary School. The property offers excellent transport links with easy access to the M8, making commuting to Edinburgh and Glasgow straightforward. Local amenities are available nearby in Harthill and Whitburn, including Asda, Scotmid and further retail options within the Heartlands development. Polkemmet Country Park is also close by, offering fantastic outdoor space and walking routes, while Armadale Train Station is a short drive away providing rail links to Edinburgh and Glasgow. This is a fantastic opportunity to secure a well maintained family home in a convenient and popular location.

Nestled in the charming village of Harthill, this area enjoys a prime position almost equidistant between Glasgow and Edinburgh, making it a desirable location for prospective homebuyers and commuters alike. Harthill is a village teeming with community spirit and local amenities, promising an idyllic lifestyle for future residents.

Home Report Value- £155,000
EPC - D
Council Tax Band - A
Square Ft- 1033/ 96m2

Disclaimer
The information contained within this advertisement is intended as a guide only and does not constitute an offer or contract. While every effort has been made to ensure accuracy, measurements are approximate and provided for indicative purposes only. All marketing content remains the copyright of Bridges Properties and may not be copied or reproduced without prior written consent. Marketing images are for illustrative purposes. Contents and furnishings are excluded from the sale unless expressly stated otherwise.

Share this Property

Similar Properties

  • Sold STC
    Offers Over £180,000
    Beautiful four bedroom terraced house with period charm, modern kitchen, two bathrooms, private gardens and excellent transport links. Ideal for...
    4
    2
    1
  • Sold STC
    Offers Over £160,000
    Charming two bedroom terraced house with sunroom, modern kitchen, utility WC, stylish bathroom, private garden and on street parking. Close...
    2
    2
    3
  • Sold STC
    Offers Over £175,000
    Beautifully refurbished 3 bed semi detached home in Bathgate. New kitchen, bathroom, fresh décor, chain free. Close to schools, amenities,...
    3
    1
    2
  • Sold STC
    Offers Over £135,000
    Chain free three bedroom home in Whitburn with spacious lounge, modern kitchen, ground floor main bedroom, two upstairs bedrooms, garden,...
    3
    1
    2
  • Sold STC
    Offers Over £155,000
    Beautifully presented 3 bed chalet bungalow in Whitburn with modern décor, flexible living, enclosed garden and excellent transport links. Close...
    3
    1
    1
  • Sold STC
    Offers Over £180,000
    Chain free two bed detached bungalow in quiet Whitburn cul de sac. Spacious, with garage, carport, gardens and great transport...
    2
    1
    1

Contact Us

Hawthorn Drive, Harthill

We appreciate your interest in joining Bridges Properties. Please complete the form below to apply for the selected position with us.


Submit Application

Hawthorn Drive, Harthill

We appreciate your interest in joining Bridges Properties. Please complete the form below to apply for the selected position with us. Be sure to upload your CV and cover letter, and detail any relevant experience.


Upload CV

If there are no positions listed, we still encourage you to submit your CV and cover letter for future opportunities.


Menu

Hawthorn Drive, Harthill

Offers Over £150,000

Complete the form below to send a property enquiry.

Bridges Properties
Privacy Overview

This website uses cookies so that we can provide you with the best user experience possible. Cookie information is stored in your browser and performs functions such as recognising you when you return to our website and helping our team to understand which sections of the website you find most interesting and useful.

This website also uses Google Analytics to collect anonymous information such as the number of visitors to the site, and the most popular pages.

By continuing to use this website, you agree to their use.