Loch Earn Way, Whitburn

Offers Over £135,000
Sold STC
3 Bedrooms
1 Bathrooms
2 Receptions

Loch Earn Way, Whitburn

Property Summary

Chain free three bedroom home in Whitburn with spacious lounge, modern kitchen, ground floor main bedroom, two upstairs bedrooms, garden, parking and excellent local amenities and transport links.
  • Ref: 44169223-23b0-4f1b-9990-d285e59a7ccf
  • Availability: Sold STC
  • Bedrooms: 3
  • Bathrooms: 1
  • Reception Rooms: 2
  • Parking: Single Garage
  • Council Tax Band: B
  • Tenure: Freehold
  • Make Enquiry
  • Floorplan
  • View Brochure
  • View Brochure
  • View Brochure
  • View EPC
  • Utilities & More
  • Make Enquiry
  • LBTT Calculator

Description

Full Details

Welcome to Loch Earn Way, a fantastic three bedroom, chain free home in Whitburn, ready for its next owner to move straight in and enjoy from day one.

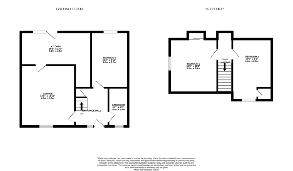
As you step inside, you’re welcomed by a bright and spacious hallway, setting the tone for the rest of the home. To the left, you’ll find the generously sized living room,a calm and inviting space, finished with dark oak style wood laminate flooring and soft pink toned décor that creates a warm, relaxing atmosphere. Large windows to the front allow natural light to pour in, enhancing the sense of space and making this the perfect room to unwind or entertain.

Flowing seamlessly from the lounge, you’re led through to the kitchen. This is a bright and practical space, fitted with wooden effect cabinetry, complemented by cream tiling and light coloured worktops. The room benefits from large windows, allowing plenty of natural light to fill the space. There is also a door leading directly out to the rear garden, although, given its close proximity to the off street parking, many may find this becomes their main point of entry into the home.

Back through the living room and across the hallway, you’ll find the family bathroom. Well appointed and stylish, it features a bath with overhead shower, WC and sink, with a striking dark grey slate effect wet wall surrounding the bath area, adding a modern and sleek finish.

Completing the ground floor is the main bedroom, a well proportioned space continuing the soft pink taupe tones and laminate flooring, creating a cohesive and calming feel.

Upstairs, the home offers two further bedrooms, both finished with dark grey carpeting that flows through the staircase and upper hallway, giving a seamless and cosy feel. Bedroom two benefits from built in wardrobe space, adding both practicality and storage, while the third bedroom offers flexibility to suit a variety of needs whether that be a bedroom, home office, or dressing space.

Perfectly suited for a range of buyers, this is a home that offers immediate comfort with the potential to personalise over time all within a popular Whitburn setting, making it an ideal place to call home. Ready for its next owner: This home provides the perfect blank canvas for someone to make it their own. Whether adding personal touches or further modern upgrades, the property is well prepared for a smooth transition and immediate enjoyment.

Loch Earn Way is ideally situated close to a range of local facilities. Families will appreciate nearby schooling options including Whitdale Primary which is only a two minute walk from the property, as well as having St. Joseph’s Primary School and Whitburn Academy nearby. Shops, cafes and essential services such as dentists and doctor surgeries are all within easy walking distance on Whitburn Main Street . The area offers plenty of leisure opportunities, including Whitburn Bowling Club and nearby parks and green spaces. Excellent transport links include regular bus services, quick access to the M8 motorway, and Bathgate and Armadale railway stations just a short drive away, connecting commuters efficiently to Edinburgh and Glasgow.

The small town of Whitburn lies to the west of West Lothian and provides convenient transport connections with two junctions of the M8 motorway as well as easy access to both Edinburgh and Glasgow via Bathgate and Armadale Train Stations. The town is a great base for commuters thanks to its ample local amenities including an award winning gym, swimming pool, supermarkets, primary school and secondary schools. Nature lovers are in luck too with Polkemmet Country Park only minutes away offering tranquil woodlands, golf course, café and outdoor play area – all this is conveniently situated right on your doorstep.

In recent years, the town of Whitburn has been completely transformed due to The Heartlands – one of Europe’s most expansive regeneration projects. Over a decade, hundreds of homes have been built, with plenty more on the pipeline. With generous investments into amenities such as a petrol station, fast food restaurants and a coffee shop, these plans look set to only increase over the years, transforming Whitburn into an exciting place for people to live.

Home Report Value- £140,000
EPC -
Council Tax Band - B
Square Ft- 904 /84m2

Disclaimer
The information contained within this advertisement is intended as a guide only and does not constitute an offer or contract. While every effort has been made to ensure accuracy, measurements are approximate and provided for indicative purposes only. All marketing content remains the copyright of Bridges Properties and may not be copied or reproduced without prior written consent. Marketing images are for illustrative purposes. Contents and furnishings are excluded from the sale unless expressly stated otherwise.

Share this Property

Similar Properties

  • Sold STC
    Offers Over £155,000
    Beautifully presented 3 bed chalet bungalow in Whitburn with modern décor, flexible living, enclosed garden and excellent transport links. Close...
    3
    1
    1
  • Sold STC
    Offers Over £145,000
    Beautifully presented two bedroom semi in Glenalmond, Whitburn. Modern interiors, driveway, private south facing garden, stylish kitchen and bathroom. Walk...
    2
    1
    2
  • Sold STC
  • Sold STC
    Offers Over £120,000
    Well proportioned two bed end terrace in Blackburn with driveway, private garden, modern kitchen, good storage, close to schools, transport...
    2
    1
    2
  • Sold STC
    Offers Over £120,000
    Renovated 2 bed ground floor flat with open plan living, high ceilings, king size bedrooms, parking and west facing garden....
    2
    1
    1
  • Offers Over £150,000
    Immaculate top floor two bed flat in Bathgate with spacious open plan living, modern kitchen, two stylish bathrooms, great storage...
    2
    2
    2

Contact Us

Loch Earn Way, Whitburn

We appreciate your interest in joining Bridges Properties. Please complete the form below to apply for the selected position with us.


Submit Application

Loch Earn Way, Whitburn

We appreciate your interest in joining Bridges Properties. Please complete the form below to apply for the selected position with us. Be sure to upload your CV and cover letter, and detail any relevant experience.


Upload CV

If there are no positions listed, we still encourage you to submit your CV and cover letter for future opportunities.


Menu

Loch Earn Way, Whitburn

Offers Over £135,000

Complete the form below to send a property enquiry.

Bridges Properties
Privacy Overview

This website uses cookies so that we can provide you with the best user experience possible. Cookie information is stored in your browser and performs functions such as recognising you when you return to our website and helping our team to understand which sections of the website you find most interesting and useful.

This website also uses Google Analytics to collect anonymous information such as the number of visitors to the site, and the most popular pages.

By continuing to use this website, you agree to their use.