Cannop Meadows, Bents

Fixed Price £380,000
Sold STC
5 Bedrooms
3 Bathrooms
1 Receptions

Cannop Meadows, Bents

Property Summary

Luxury 5-bed home in Cannop Meadows Phase Three. Spacious lounge. Stylish kitchen/dining area opens to garden. 4 bedrooms with fitted wardrobes, main bedroom with en-suite. Modern family bathroom. Front and rear gardens. Completion April/May 2026. (Images for illustrative purposes only).
  • Ref: 12ebb28c-058d-4004-a322-3908a961be54
  • Availability: Sold STC
  • Bedrooms: 5
  • Bathrooms: 3
  • Reception Rooms: 1
  • Tenure: Freehold
  • Make Enquiry
  • Floorplan
  • View Brochure
  • View Brochure
  • View Brochure
  • Virtual Tour
  • Virtual Tour
  • Make Enquiry
  • LBTT Calculator

Description

Full Details

Bridges Properties are proud to present Phase Three of the exceptional Cannop Meadows development – a rare opportunity to secure a luxury five-bedroom detached home in a truly idyllic setting.

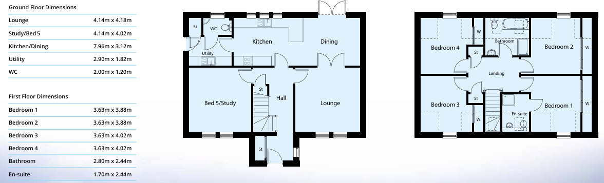
The Alder is an impressive five-bedroom detached home, thoughtfully designed to offer flexible living space for modern family life.

A welcoming hallway connects the ground floor spaces and includes two useful storage cupboards, with easy access to the lounge, study/bedroom 5, and staircase to the first floor.

On the ground floor, a spacious lounge provides the perfect place to relax and unwind, while a separate Study/Bedroom 5 offers versatility to suit your needs. The stylish Kitchen/Dining area, positioned at the rear of the property, opens directly onto the garden – ideal for entertaining or enjoying outdoor living.

Upstairs, you’ll find four generously sized bedrooms, all benefiting from fitted wardrobe space, along with two additional storage cupboards in the hallway for added convenience. The main bedroom boasts its own en-suite bathroom.

The accommodation is completed with a modern family bathroom and a downstairs WC.

Outside, The Alder features gardens to both the front and rear, offering plenty of space for relaxation and family activities.

Blending comfort, practicality, and style, The Alder is a perfect place to call home.

Estimated completion: April/May 2026
* Please note: Images shown are of the show home and a different house style. They are used for illustrative purposes only.*

Disclaimer
The information contained within this advertisement is intended as a guide only and does not constitute an offer or contract. While every effort has been made to ensure accuracy, measurements are approximate and provided for indicative purposes only. All marketing content remains the copyright of Bridges Properties and may not be copied or reproduced without prior written consent. Marketing images are for illustrative purposes. Contents and furnishings are excluded from the sale unless expressly stated otherwise.

Share this Property

Similar Properties

  • Fixed Price £380,000
    Immaculate 4 bed detached home in Livingston Village with open plan kitchen, ensuite, garage, driveway, suntrap garden, great schools, shops...
    4
    3
    2
  • Offers Over £325,000
    Plot 42 Blackhill View in Tod Gardens: stylish homes designed for modern families. Open plan layout, en-suite principal bedroom, spacious...
    4
    3
    2
  • Offers Over £325,000
    Plot 6 Blackhill View in Tod Gardens: modern homes designed for family living. Open-plan kitchen, spacious bedrooms, high-quality finishes. Ideal...
    4
    3
    1
  • Offers Over £375,000
    Immaculate 4 bed elevated bungalow on a corner plot in Hawthorn Bank, Seafield. Stunning Pentland Hill views, flexible living, superb...
    4
    2
    3
  • Offers Over £290,000
    Modern four bedroom townhouse in Winchburgh with stylish décor, spacious kitchen/diner, principal suite, garden, parking, close to schools, shops, and...
    4
    3
    2
  • Sold STC
    Offers Over £350,000
    Exceptional 4 bed, 3 bath detached home with garage, double drive, landscaped South West garden, countryside views, extended kitchen, 2...
    4
    3
    3

Contact Us

Cannop Meadows, Bents

We appreciate your interest in joining Bridges Properties. Please complete the form below to apply for the selected position with us.


Submit Application

Cannop Meadows, Bents

We appreciate your interest in joining Bridges Properties. Please complete the form below to apply for the selected position with us. Be sure to upload your CV and cover letter, and detail any relevant experience.


Upload CV

If there are no positions listed, we still encourage you to submit your CV and cover letter for future opportunities.


Menu

Cannop Meadows, Bents

Fixed Price £380,000

Complete the form below to send a property enquiry.

Bridges Properties
Privacy Overview

This website uses cookies so that we can provide you with the best user experience possible. Cookie information is stored in your browser and performs functions such as recognising you when you return to our website and helping our team to understand which sections of the website you find most interesting and useful.

This website also uses Google Analytics to collect anonymous information such as the number of visitors to the site, and the most popular pages.

By continuing to use this website, you agree to their use.