Croftfoot Drive, Fauldhouse

Offers Over £115,000
Sold STC
2 Bedrooms
1 Bathrooms
1 Receptions

Croftfoot Drive, Fauldhouse

Property Summary

Spacious two bed mid terrace with open plan kitchen, two king size bedrooms, private east facing garden, communal parking and great transport links. Ideal for first time buyers or families.
  • Ref: de47cdf5-d8c8-41f3-b3ff-07570d1414b2
  • Availability: Sold STC
  • Bedrooms: 2
  • Bathrooms: 1
  • Reception Rooms: 1
  • Council Tax Band: A
  • Tenure: Freehold
  • Make Enquiry
  • Floorplan
  • View Brochure
  • View Brochure
  • View Brochure
  • View EPC
  • Utilities & More
  • Make Enquiry
  • LBTT Calculator

Description

Full Details

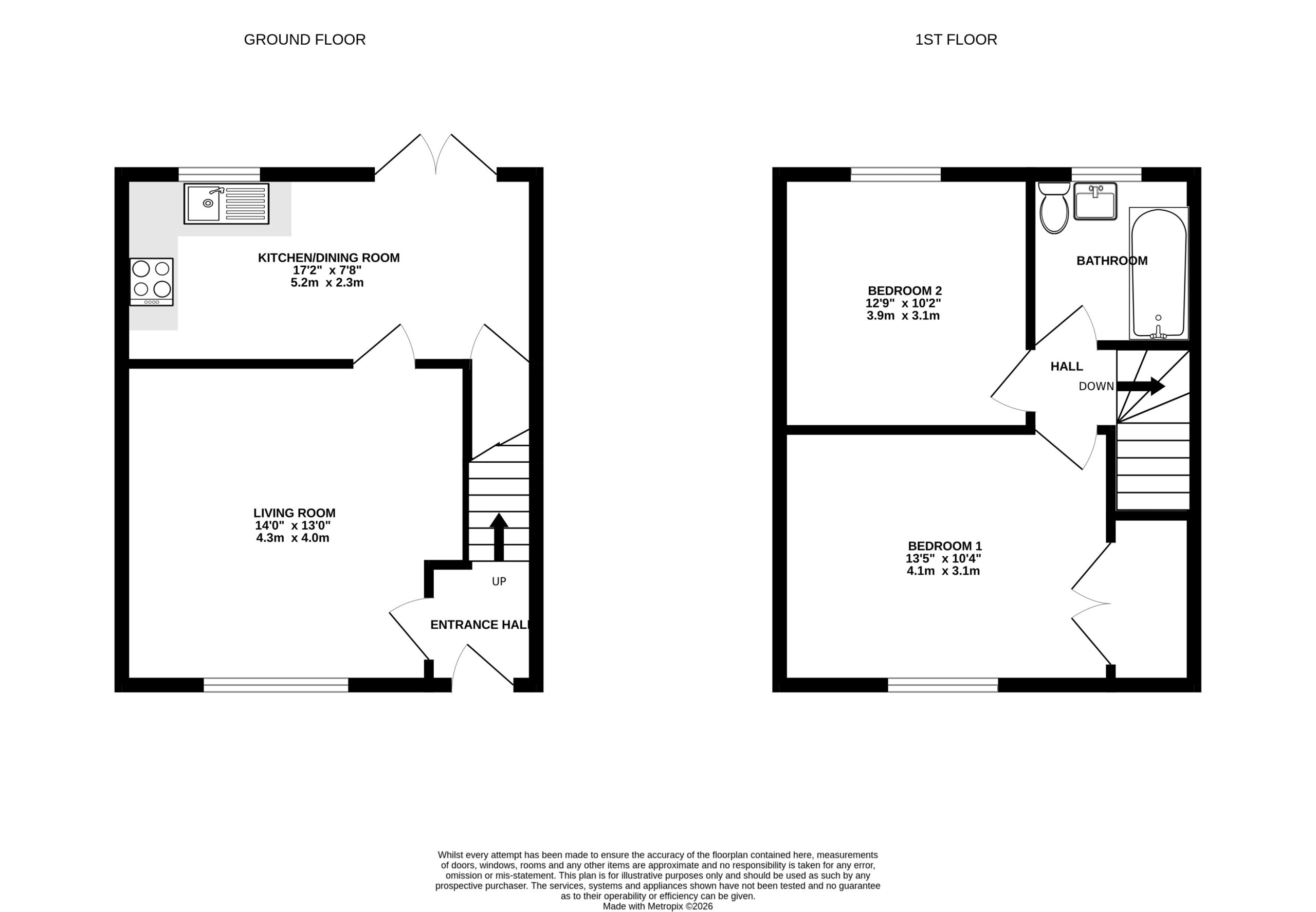
Welcome to Croftfoot Drive, Fauldhouse, a spacious two bedroom mid terrace home offering generous room sizes, an open plan kitchen and dining area and a private east facing rear garden. With two king sized bedrooms and excellent potential throughout, this home presents a fantastic opportunity for first time buyers, small families or anyone seeking a well proportioned property in a convenient location.

Upon entering, you are welcomed into a bright hallway that leads through to the main living areas of the home. To the left sits the spacious lounge, a comfortable and inviting room that easily accommodates two large sofas and a media wall arrangement. Natural light fills the space, creating a warm and relaxed environment ideal for everyday living.

To the rear of the property lies the open plan kitchen and dining area, a practical and sociable space perfect for both family meals and entertaining. The kitchen is fitted with a four point induction hob and integrated oven, with space for a washing machine and an American style fridge freezer. Ample worktop space and splashback tiling add functionality, while the dining area comfortably seats four people. A useful storage cupboard beneath the stairs provides additional pantry style storage. Patio doors lead directly out to the rear garden, creating a seamless indoor outdoor flow.

Upstairs, the property offers two generous king sized bedrooms. The principal bedroom comfortably accommodates a king size bed with bedside cabinets and a chest of drawers, and benefits from fitted wardrobes on either side of the room, providing excellent storage. Bedroom two is also a spacious double, easily fitting a king size bed with bedside cabinets and featuring its own fitted wardrobe, along with pleasant views overlooking the rear garden.

The family bathroom is well proportioned and comprises a three piece suite including a bathtub with overhead shower. The space is fully tiled and presented in clean, neutral tones.

Externally, the property enjoys a private east facing rear garden that is not overlooked, providing a peaceful outdoor space with excellent morning sunlight. A decking area has been added by the current owners, creating an ideal spot for outdoor seating and summer barbecues. To the front, there is communal parking available for residents and visitors.

Croftfoot Drive is conveniently located with easy access to local amenities, schools and transport links. Nearby primary schools include St John the Baptist RC Primary School and Falla Hill Primary School, while excellent commuting options are available via nearby train stations and road connections providing access to Edinburgh and Glasgow.

Offering generous internal space, a private garden, and strong potential, this is a well-located home that provides comfortable living with scope to make it your own

Sale Inclusions: Light fittings, blinds

Home Report Value- £120,000
EPC - C
Council Tax Band - A
Square Ft- 732/ 68m2

Disclaimer
The information contained within this advertisement is intended as a guide only and does not constitute an offer or contract. While every effort has been made to ensure accuracy, measurements are approximate and provided for indicative purposes only. All marketing content remains the copyright of Bridges Properties and may not be copied or reproduced without prior written consent. Marketing images are for illustrative purposes. Contents and furnishings are excluded from the sale unless expressly stated otherwise.

Share this Property

Similar Properties

  • Sold STC
    Offers Over £130,000
    Immaculate 2 bed ground floor flat with stylish interiors, modern kitchen, spa style bathroom, great storage, private gardens and resident...
    2
    1
    2
  • Sold STC
    Offers Over £135,000
    Beautifully presented 3 bed family home in Bathgate. Bright, versatile layout, modern kitchen, south facing garden, parking, excellent storage. Close...
    3
    1
    2
  • Sold STC
    Offers Over £115,000
    Spacious two bedroom mid terrace with west-facing garden, bright lounge, large kitchen, two double bedrooms, bathroom, storage and excellent transport...
    2
    1
    2
  • Sold STC
    Offers Over £135,000
    Spacious 3 bed home in quiet, community row. Modern interiors, two living areas, garden & rear parking. Close to amenities,...
    3
    1
    2
  • Sold STC
    Offers Over £135,000
    Chain free three bedroom home in Whitburn with spacious lounge, modern kitchen, ground floor main bedroom, two upstairs bedrooms, garden,...
    3
    1
    2
  • Offers Over £130,000
    Fully renovated two bedroom home with new kitchen, bathroom, flooring and décor. Private garden, parking and modern finishes throughout. Ideal...
    2
    1
    2

Contact Us

Croftfoot Drive, Fauldhouse

We appreciate your interest in joining Bridges Properties. Please complete the form below to apply for the selected position with us.


Submit Application

Croftfoot Drive, Fauldhouse

We appreciate your interest in joining Bridges Properties. Please complete the form below to apply for the selected position with us. Be sure to upload your CV and cover letter, and detail any relevant experience.


Upload CV

If there are no positions listed, we still encourage you to submit your CV and cover letter for future opportunities.


Menu

Croftfoot Drive, Fauldhouse

Offers Over £115,000

Complete the form below to send a property enquiry.

Bridges Properties
Privacy Overview

This website uses cookies so that we can provide you with the best user experience possible. Cookie information is stored in your browser and performs functions such as recognising you when you return to our website and helping our team to understand which sections of the website you find most interesting and useful.

This website also uses Google Analytics to collect anonymous information such as the number of visitors to the site, and the most popular pages.

By continuing to use this website, you agree to their use.